Privatschule Mannheim – effizient geplant, robust umgesetzt und optimal belüftet für einen erfolgreichen Schulstart
Aus einem Verwaltungsgebäude wurde in Mannheim eine moderne Privatschule – mit dem klaren Ziel, zum Schulstart beste Raumluftqualität und einen effizienten Anlagenbetrieb sicherzustellen. Das Lindab Solution Center hat das Projekt gemeinsam mit dem Planer durchgängig begleitet – von der Modellierung bis zur Ausführung – mit CADvent und gezieltem Projekt-Support. Für die Unterrichtsräume stand eine komfortable Raumströmung im Fokus, realisiert über Dralldurchlässe RS16-H. Die bedarfsgeregelte Volumenstromregelung mit UltraBT FTCU sorgt für einen energieoptimierten Betrieb. Zusätzlich wurde für die Küche eine robuste Abluftlösung umgesetzt – große Anlagenteile fettdicht verkittet für maximale Betriebssicherheit.
Das Projekt
Beim Umbau eines Verwaltungsgebäudes zur Privatschule in Mannheim wurden neue Nutzungsbereiche wie Unterrichtsräume, Aufenthaltszonen und Küchenbereiche technisch neu gedacht. Ziel war eine Lösung, die den täglichen Schulbetrieb zuverlässig unterstützt: angenehme Raumluft, stabile Temperaturen und ein effizienter Energieeinsatz – von Beginn an sauber geplant und dokumentiert. Das Lindab Solution Center begleitete das Projekt mit CADvent vom Modell bis zur Ausführung und unterstützte den Planer mit Projekt-Support. So entstand eine technische Grundlage, die eine reibungslose Umsetzung und einen erfolgreichen Start zum Schulbetrieb ermöglicht.
Die Herausforderung
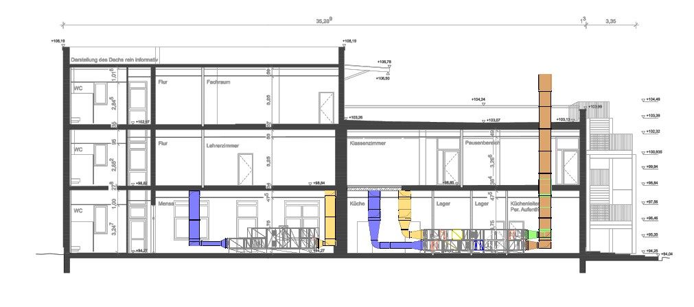
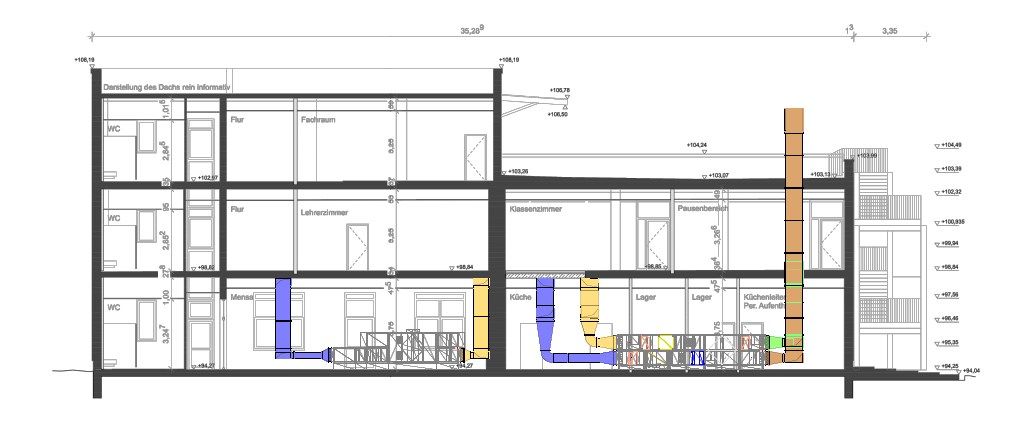
Bei einer Umnutzung zur Schule treffen unterschiedliche Anforderungen aufeinander: Unterrichtsräume brauchen eine zugfreie, gleichmäßige Raumströmung, während Küchenbereiche hohe Betriebssicherheit und robuste Ausführung verlangen. Gleichzeitig müssen Leitungsführung und Platzverhältnisse im Bestand effizient gelöst werden – inklusive sauberer Abstimmung zwischen Planung und Ausführung. Besonders kritisch: Küchenabluft muss dauerhaft zuverlässig funktionieren, weshalb große Anlagenteile fettdicht verkittet ausgeführt wurden. Entscheidend war deshalb ein durchgängiger Planersupport, der technische Details früh fixiert und die Umsetzung absichert.
Die Lösung
Die Lösung kombiniert Planungsunterstützung, Komfortkomponenten und robuste Ausführung zu einem System, das den Schulalltag zuverlässig trägt.
Durchgängiger Planersupport mit CADvent
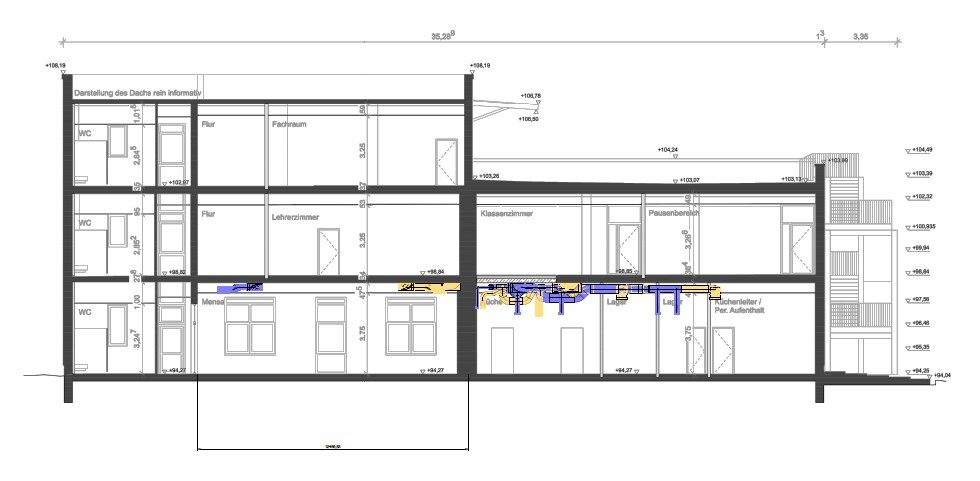
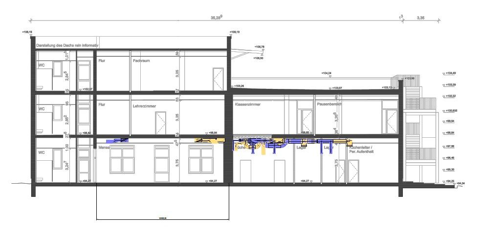
Bereits in der frühen Phase wurde das Projekt mit CADvent modelliert und fortlaufend begleitet – bis in die Ausführung. Damit konnten Leitungsführung, Platzbedarf und Anschlusssituationen frühzeitig abgestimmt werden. Der Vorteil: weniger Reibungsverluste auf der Baustelle, bessere Koordination der Gewerke und eine Planung, die sich 1:1 in die Umsetzung überführen lässt. Gerade bei Umbauten im Bestand ist diese Kontinuität entscheidend, um Überraschungen zu vermeiden und Termine zu halten.
Komfort in Unterrichtsräumen – Dralldurchlässe RS16-H
Für die Unterrichtsräume wurde eine komfortable Raumströmung über Dralldurchlässe RS16-H realisiert. Dralldurchlässe eignen sich besonders, wenn eine gleichmäßige Induktion und gute Vermischung gefragt sind – damit sich die Luft angenehm verteilt und Zugerscheinungen minimiert werden. Für Lernumgebungen ist das ein echter Komfortfaktor: konzentriertes Arbeiten ohne störende Luftbewegungen.
Energieeffizienter Betrieb – UltraBT FTCU Volumenstromregler
Die bedarfsgerechte Regelung erfolgt über UltraBT FTCU Volumenstromregler (DN315–630). Damit lassen sich Luftmengen präzise an Nutzung und Bedarf anpassen – mit entsprechend optimiertem Energieeinsatz. Insbesondere im Schulbetrieb mit wechselnden Belegungen (Unterricht, Pausen, Sondernutzung) schafft die VAV-Regelung die notwendige Flexibilität, ohne die Anlagenqualität zu beeinträchtigen.
Robuste Küchenabluft – maximale Betriebssicherheit
Ein besonderer Schwerpunkt war die Küchenabluft: Für maximale Sicherheit und Langlebigkeit wurden große Anlagenteile fettdicht verkittet ausgeführt. Das reduziert das Risiko von Undichtigkeiten und sorgt dafür, dass die Anlage auch bei intensiver Nutzung dauerhaft zuverlässig arbeitet – ein wichtiger Punkt für Hygiene, Sicherheit und Wartungsfreundlichkeit.
Geliefert & umgesetzt (Auszug):
- 298 m² Kanal & Formteile
- 18× Dralldurchlässe Versio RS16-H
- 6× UltraBT Volumenstromregler FTCU DN315–630
- 120 m Wickelfalzrohr
Die Umsetzung
Die Umsetzung profitierte von der CADvent-gestützten Planung: Leitungswege, Übergänge und Einbausituationen konnten vorab sauber festgelegt und auf der Baustelle zielgerichtet umgesetzt werden. Kanal- und Rohrnetz wurden abschnittsweise montiert, die Volumenstromregelung über UltraBT FTCU integriert und die Unterrichtsräume mit RS16-H für eine komfortable Strömung ausgestattet. Parallel wurde die Küchenabluft in robuster Ausführung realisiert, inklusive fettdichter Verkittung großer Anlagenteile. Das Ergebnis ist eine praxistaugliche, effizient betriebene Anlage – bereit für den Schulstart.
Ergebnis: Die umgebaute Privatschule verfügt über effiziente Anlagen, stabile Luftqualität und komfortable Raumströmung – optimal für gutes Lernen. Durch den durchgängigen CADvent-Planersupport, die bedarfsgeregelte UltraBT-Volumenstromregelung und eine robuste Küchenabluft entstand eine Lösung, die zuverlässig funktioniert und langfristig sicher betrieben werden kann. Ein zufriedener Kunde – und gute Luft für einen erfolgreichen Schulstart.
Der Lindab-Experte
Sven Schäffer - Senior Projektmanager im Lindab Solution Center
Seit über 35 Jahren mit Begeisterung in der Gebäude Technik am Start. Egal welche Projektphase oder Größe, er unterstützt und entwickelt gemeinsam mit Ihnen energieeffiziente Lösungen im Bereich Luft -und Wasser Lösungen, Schall und Sonderanforderungen im Gebäude-und Industriebereich.
Seine jahrelange Erfahrung und die umfassenden Kenntnisse im Bereich der Lüftungs-und Klimatechnik, verbunden mit dem umfassenden Wissen über das Lindab Programm und einem sehr guten internen und externen Netzwerk tragen dazu bei, die modernen und interessanten Projekte von heute für morgen zu meistern.




